매물 목록으로
전화 상담하기

1 / 3
위치
정확한 위치는 상담 후 안내부산광역시 부산진구 부전동 일원
상가C5092
보증금 3,000만
월세 250만
부산광역시 부산진구 부전동
공급면적
47.6㎡ (14평)
해당/총 층수
1층 / 20층
주차
323대
엘리베이터
있음
방향
동
매물 설명
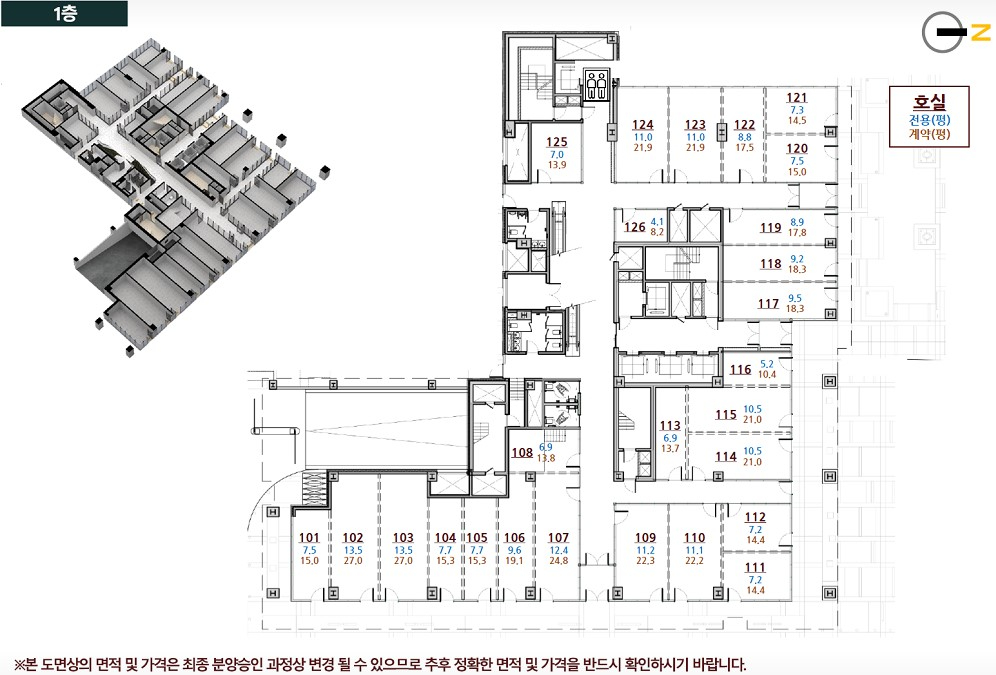
[위치] : 서면2번가 동천로변 부전도서관 인근 [층수] : 1층 [면적] : 14.4평(전용 7.2평) [엘베] : 있음 [주차] : 1대 가능 [관리비] : 미정 [방/화장실] : 1 / 1(외부 공동 남녀구분) [특장점] : 서면2번가 신축 주상복합 1층 코너 상가, 유동 많고 노출 좋아서 광고효과 최고. [입주시기] : 2025년 1월 예정
스마일부동산중개법인(주) | 051-638-5552
중개대상물 표시·광고 의무정보
- 중개대상물 종류
- 상가
- 거래 형태
- 월세
- 소재지
- 부산광역시 부산진구 부전동
- 면적 (공급 / 전용)
- 47.6㎡
- 가격
- 보증금 3,000만 / 월세 250만
- 권리금
- 무권리
- 관리비
- 별도 없음
- 해당 층 / 총 층수
- 1층 / 20층
- 방향 (주실 기준)
- 동
- 주차
- 323대
- 점포 / 화장실
- 1개 / 1개
- 입주 가능일
- 협의
- 건축물 용도 (전유부 용도)
- 제2종근린생활시설(일반음식점)
- 건물 전체 주용도
- 업무시설 (업무시설, 제2종근린생활시설)
- 위반건축물 여부
- 정보 없음
- 사용승인일
- 2024. 12. 12.
중개사무소 정보
- 상호
- 스마일부동산중개법인(주)
- 대표자
- 김성민 (개업공인중개사)
- 중개사무소 등록번호
- 26230-2024-00045
- 사업자등록번호
- 408-88-03024
- 소재지
- 부산광역시 부산진구 서전로 9, 석천빌딩 3층
- 연락처
- 051-638-5552
본 광고는 공인중개사법 제18조의2 및 시행규칙에 따라 중개대상물의 표시·광고 의무정보를 명시합니다. 계약 전 등기부등본·건축물대장 확인을 권장하며, 실제 매물 정보는 시점에 따라 달라질 수 있으므로 방문·상담 시 재확인이 필요합니다.